HU
Vissza
Lakások

2. emeleti, napfényes 1+1 szobás lakás nagy terasszal – új építésű társasház a Károly János utcában!

#307
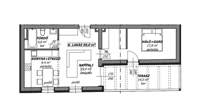
Székesfehérvár Károly János utca 49. | Méret: 50m2 | Szobák: 1 | Fürdőszobák: 1 | 84.800.000 HUF
Bankmonitor Lakáshitel kalkulátor
  • ✓ Előbírálat 24 órán belül, elsőként az országban!
  • ✓ Árgarancia: nem kapsz jobb ajánlatot sehol
  • ✓ Több bank ajánlata egy helyen
Kalkuláció indítása
Leírás
Alaprajz
Fotók

Székesfehérvár egyik legjobb elhelyezkedésű, belvároshoz közeli részén kínáljuk megvételre ezt a 50 nm-es, modern kialakítású lakást, amely egy 2026-ra készülő, 7 lakásos társasház 2. emeletén található. A kis lakásszámú épület nyugodt, családias atmoszférát biztosít, miközben minden fontos helyszín néhány percnyi sétára elérhető.

A lakás különlegessége a 14 nm-es, tágas utcára néző terasz, amely ideális reggeli kávézáshoz, növényekhez vagy akár egy kisebb lounge-rész kialakításához.

A lakás főbb paraméterei:

  • 50 nm alapterület
  • Amerikai konyhás nappali – jól berendezhető, világos tér
  • 1 külön hálószoba
  • 14 nm-es terasz, nyitott kilátással az utcafrontra
  • Modern, hatékony elrendezés

Műszaki tartalom:

A lakás megbízható, energiatakarékos rendszerekkel készül:

  • Hőszivattyús fűtés, alacsony fenntartási költséggel
  • Padlófűtés a teljes lakásban
  • Korszerű szigetelés és nyílászárók
  • Minőségi téglaépítés
  • Csendes, jól hőszigetelt belső terek

A Károly János utca ideális választás azoknak, akik szeretnék ötvözni a központi elhelyezkedést a nyugodt környezettel.

A közelben található:

  • belváros pár percre, gyalog
  • üzletek, gyógyszertár
  • buszmegálló
  • iskolák, óvodák
  • szolgáltatások széles választéka

Minden adott egy kényelmes, praktikus mindennapi élethez.

Tervezett átadás: 2026. december

contact
MÉSZÁROS DÓRA ÉRTÉKESÍTÉSI MANAGER / SALES MANAGER Hívjon most Küldjön üzenetet Időpont egyeztetés
Hirdetés azonosító#307
×