HU
Vissza
Lakások

Modern földszinti lakás, nagy terasszal és saját kertrésszel - ÉDEN RESORT

#293
Székesfehérvár Éden Resort - Kelemen B. u. | Méret: 69m2 | Szobák: 2 | Fürdőszobák: 1 | 102.566.250 HUF
Bankmonitor Lakáshitel kalkulátor
  • ✓ Előbírálat 24 órán belül, elsőként az országban!
  • ✓ Árgarancia: nem kapsz jobb ajánlatot sehol
  • ✓ Több bank ajánlata egy helyen
Kalkuláció indítása
Leírás
Alaprajz
Fotók

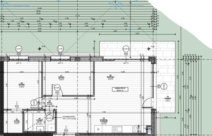
Eladó a már épülő Éden Resortban, Székesfehérvár egyik legszebb zöldövezeti részén, egy 69 m²-es, amerikai konyhás nappali + 2 hálószobás földszinti lakás, amelyhez 14 m²-es terasz és egy tágas, 96 m²-es saját kertrész tartozik.

A lakás praktikus elrendezésű, világos terekkel és közvetlen kertkapcsolattal rendelkezik, így ideális választás családoknak, pároknak vagy akár kisállattartóknak is. A nagy terasz és a gondozható saját kert tökéletes helyet kínál a pihenésre, grillezésre vagy a gyerekek játékára.

Az Éden Resortban a korszerű kivitelezés, a minőségi anyaghasználat és a természetközeli környezet egyedülálló harmóniát teremt. A környék csendes, biztonságos, mégis közel van minden fontos szolgáltatás – üzletek, iskola, óvoda, tömegközlekedés is könnyen elérhető.

Főbb jellemzők:

69 m² lakótér + 14 m² terasz + 96 m² saját kert

Amerikai konyhás nappali + 2 hálószoba

Földszinti, kertkapcsolatos elhelyezkedés

Modern, energiatakarékos kivitelezés

Zöldövezeti, nyugodt környezet

Kiváló választás családoknak vagy befektetőknek

Egy igazi kis oázis Székesfehérvár zöld szívében – az Éden Resortban mindennap nyugalommal indul a reggel.

contact
MÉSZÁROS DÓRA ÉRTÉKESÍTÉSI MANAGER / SALES MANAGER Hívjon most Küldjön üzenetet Időpont egyeztetés
Hirdetés azonosító#293
×