HU
Vissza
Lakások

Stílusos földszinti lakás saját kis kerttel – ÉDEN RESORT

#292
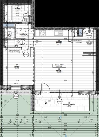
Székesfehérvár Éden Resort - Kelemen B. u. | Méret: 52m2 | Szobák: 1 | Fürdőszobák: 1 | 75.363.750 HUF
Bankmonitor Lakáshitel kalkulátor
  • ✓ Előbírálat 24 órán belül, elsőként az országban!
  • ✓ Árgarancia: nem kapsz jobb ajánlatot sehol
  • ✓ Több bank ajánlata egy helyen
Kalkuláció indítása
Leírás
Alaprajz
Fotók

Eladó Székesfehérvár egyik legszebb zöldövezeti részén, a már épülő Éden Resortban egy 52 m²-es, amerikai konyhás nappali + 1 hálószobás földszinti lakás, amelyhez 8 m²-es terasz és egy 25 m²-es saját kertrész tartozik.

A modern kialakítású lakás igazi kis ékszerdoboz: tágas nappalija közvetlen kapcsolatban van a terasszal és a kerttel, így tökéletes választás azoknak, akik szeretik a természet közelségét és a nyugodt életteret.

A minőségi kivitelezés, a korszerű anyagok és a gondosan megtervezett belső terek garantálják a kényelmet és az exkluzív hangulatot. Az Éden Resort elhelyezkedése ideális: csendes, biztonságos környék, mégis közel a város fontos pontjaihoz, üzletekhez, szolgáltatásokhoz.

Főbb jellemzők:

52 m² lakótér + 8 m² terasz + 25 m² saját kert

Amerikai konyhás nappali + 1 hálószoba

Földszinti elhelyezkedés, közvetlen kertkapcsolat

Modern, elegáns kivitelezés

Zöldövezeti, nyugodt környezet

Ideális saját otthonnak vagy értékálló befektetésnek

Egy hely, ahol a városi kényelem és a természet nyugalma találkozik – Éljen az Édenben!

contact
MÉSZÁROS DÓRA ÉRTÉKESÍTÉSI MANAGER / SALES MANAGER Hívjon most Küldjön üzenetet Időpont egyeztetés
Hirdetés azonosító#292
×