HU
Vissza
Eladó lakások

Apáczai Csere János utca

#104
V. Kerület (Pest) Apáczai Csere János utca | Méret: 131m2 | Szobák: 2 | Fürdőszobák: 2 | 620.000 HUF
Bankmonitor Lakáshitel kalkulátor
  • ✓ Előbírálat 24 órán belül, elsőként az országban!
  • ✓ Árgarancia: nem kapsz jobb ajánlatot sehol
  • ✓ Több bank ajánlata egy helyen
Kalkuláció indítása
Leírás
Térkép
Fotók

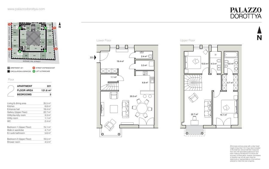
"PALAZZO DOROTTYA (221.)"

Az Apáczai Csere János utca a belváros szívében, a Duna-korzó, a Váci utca és a Vörösmarty tér szomszédságában található, valamint neves szállodák és a Pesti Vígadó is itt helyezkednek el.

A "Dorottya-Palota" építését az 1800 - as évek elején kezdték meg, szépségét pedig több neves építész formálta (ifj. Zitterbarth Mátyás, Pollack Mihály, Piescher József). Korábban bankként működött, majd 2009-ben, a felújítások után, eredeti fényében nyitotta meg újra kapuit.

A kétszintes, 131 nm-es lakás a 2. emeleten található. Az előszobából nyílik a WC, egy kis tároló helyiség, valamint a külön konyha, és innen lehet a 2. szintre is felmenni. Továbbhaladva egy nagy, tágas étkezős nappaliba érkezünk, a 2 hálószoba és egy pici nappali rész pedig az emeleten került kialakításra. Az egyik hálószobához kádas fürdőszoba tartozik és gardrób helyiség, a külön zuhanyzó pedig az előtérből nyílik.

A lakás parkettás és modern, minőségi bútorokkal berendezett, a konyha pedig luxus eszközökkel felszerelt.

Egyéb:

  • 4 külön bejárat az épületbe
  • 100 férőhelyes garázs
  • 0-24 recepció
  • Fitness Center
  • Építészetileg gyönyörű főbejárat
  • Kortárs belső udvar
  • Ház karbantartás

 

contact
Időpont egyeztetés
Hirdetés azonosító#104
×